Tree House

Tree House

This project draws inspiration from its site in the eucalyptus groves above Malibu, CA to nestle a home and exhibition space into the hillside of Southern California. The guiding principle in siting this project is the idea of minimal impact on the surrounding landscape. By using three main masses stepped down the hillside the house is able to create a low profile that follows the slope of the hill and avoids existing trees. The driveway, garage, and entry path are all guided to respond in a similar way, and remain consistent with the geometry of the project.

SitePlan.jpg

Plan and Sectional Organization

The home is organized around three main volumes which create three dominant living spaces. The upper most level is the kitchen and dining area, the middle level is the living and entry space, and the lower most level is designated for the bedroom, bathroom and powder room. All three volumes are suspended under a single sloped roof. The program is also organized to reflect the structural elements. Each level is hung from a series of large moment frames visible from the interior that serve to delineate space and visually guide the separation of program. This also frees the facade from bracing and allows the secondary structure, a series of steel fins, to create a pattern of light and shadow to reflect the trees outside and also serves to steer residents and guests between spaces.

Long Elevation/Section

Short Elevation/Section


details

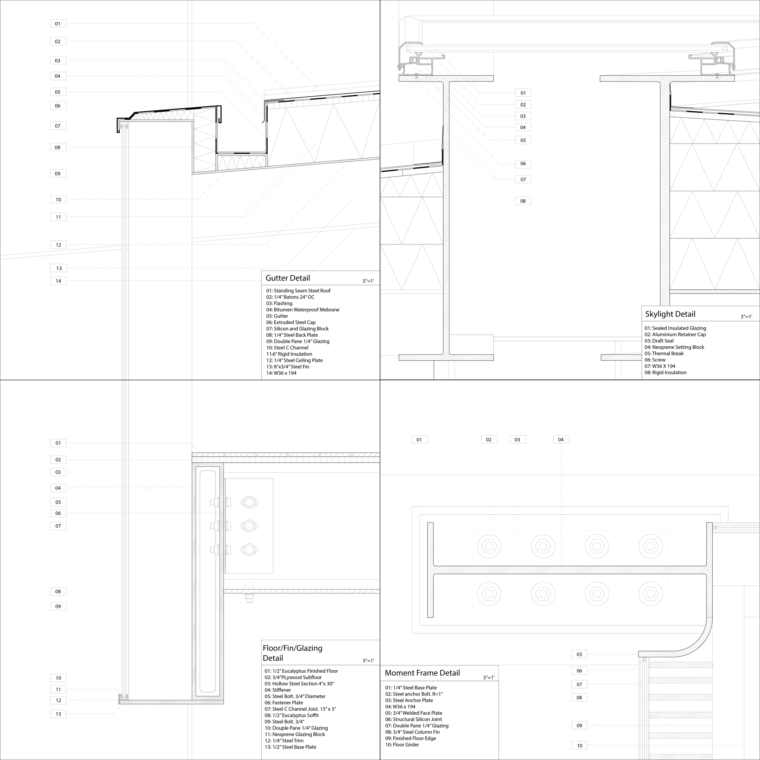
In order to maintain the clear spans of glazing, single roofline, and fin structure, the project relieson several steel details that allow the drainage and functional structure to be hidden. To cap each span the project uses a gutter system that allows rain to drain away from the glazing and down the edges of the moment frame without ever exposing the system from the exterior (top left). At each moment frame, a custom fin drains the water down to the ground without the need for a secondary downspout (bottom right). In order to maintain the full effect of the secondary structure, both the glazing and fins run past the level of the floor to allow a more subtle interaction between the shadows of the fins and the shadows of the trees (bottom left). At each moment where the momentframes interact, skylights allow this gap in structure to be exploited (top right).


Pattern, Rythmn, and structure

The development of the rhythm of the fins in the house is based on an exposition The development of the rhythm of the fins in the house is based on an exposition The development of the rhythm of the fins in the house is based on an exposition The development of the rhythm of the fins in the house is based on an exposition The development of the rhythm of the fins in the house is based on an exposition The development of the rhythm of the fins in the house is based on an exposition The development of the rhythm of the fins in the house is based on an exposition The development of the rhythm of the fins in the house is based on an exposition The development of the rhythm of the fins in the house is based on an exposition The development of the rhythm of the fins in the house is based on an exposition The development of the rhythm of the fins in the house is based on an exposition The development of the rhythm of the fins in the house is based on an exposition The development of the rhythm of the fins in the house is based on an exposition The development of the rhythm of the fins in the house is based on an exposition.