Chinese Country Home

Test%252BExport%252B1.jpg

An Architectural Ethnography

This is a project that combines architecture, spatial ethnography, and oral history to provide an intimate view of China’s tumultuous recent past. While much has been written about the various waves of demolition and rebuilding that have marked China’s efforts to remake itself into a modern nation-state since the beginning of the 20th century, this project focuses on one particular village where people simply built on top of, around, and through existing constructions rather than erasing and rebuilding spaces to fit new narratives. In so doing, this “architectural ethnography” traces the layers of history and meaning-making that have accumulated in the built environment over the last hundred years.

Through the creation of architectural drawings and collection of oral histories of a farmhouse compound that serves as the home for four generations of one family this project examines the ways that the political and  ideological palimpsest has materialized in rural village homes. Due to the village’s relative isolation and the necessity of rural life to preserve existing spaces, these physical architectural changes have been built on top of each other to at times literally form a window from one era to the next. 

At its current stage, the project consists of drawn architectural plans, as well as oral histories of how this compound was built, by whom, and with what materials. It also includes photos of other structures in the village that have followed similar trajectories. This project is being completed in collaboration with anthropologist Dr. Claudia Huang from California State University Long Beach.

Roof Plan

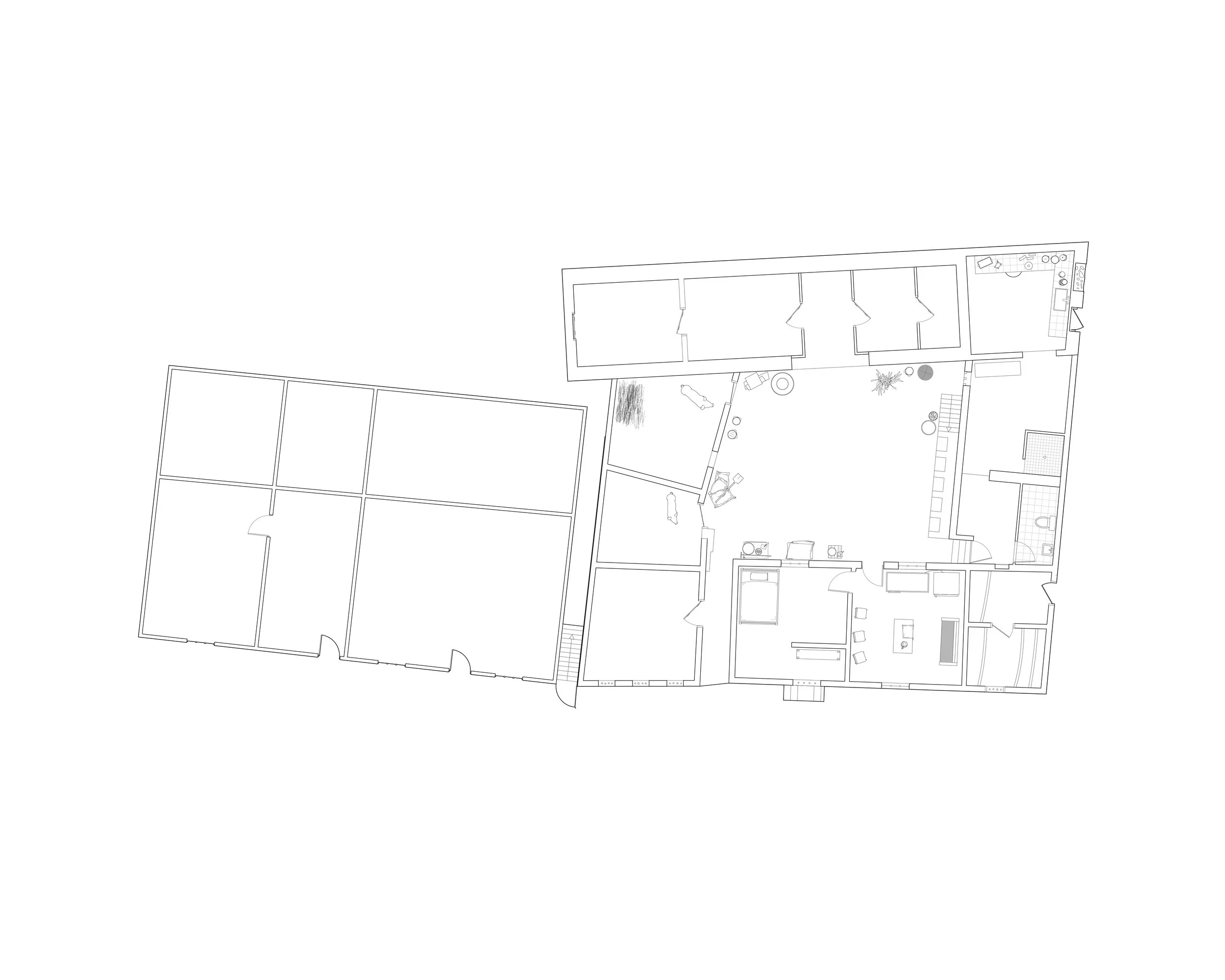
Main Level

Top Floor/Roof Deck

Ground Floor